Aller au contenu

EMS Fondation La Venoge

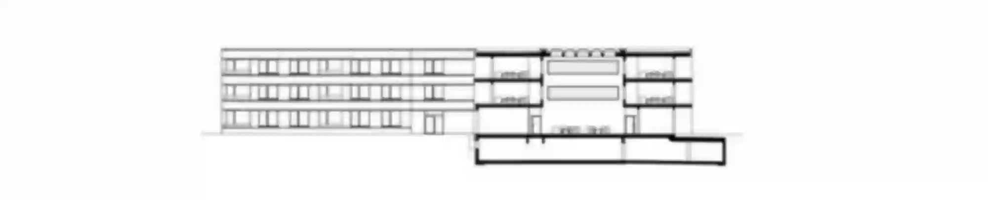
La Fondation EMS La Venoge, en collaboration avec la Coopérative Primavesta, réunit dans un unique bâtiment un programme composite : à l’établissement médico-social existant viennent s’ajouter 39 chambres supplémentaires, 17 appartements protégés, alors que des surfaces commerciales, des cabinets ainsi qu'un restaurant sont créés pour le quartier. Les programmes publics occupent une grande partie du rez-de-chaussée alors que les étages supérieurs abritent les unités d'habitation de l’EMS. Une aile du nouveau bâtiment est entièrement réservée aux appartements protégés. La proximité des différents programmes permet aux résidents de garder un contact étroit avec la vie du village, au-delà de leurs quatre murs, et ceci malgré une mobilité réduite. De l'extérieur, la diversité interne apparaît comme un tout cohérent. Une façade minérale en béton et crépie habille les trois ailes du bâtiment pour former un ensemble uniforme.

Lieu

Penthalaz

Année

2012 – 21

État

1er prix, réalisation (1er étape)

Projet

EMS, Habitations, Commerce

Maître d'ouvrage

Fondation La Venoge
et Cooperative Primavesta

Auteur

Translocal Architecture GmbH

Photos

Rainer Taepper

Prochain projet: Fondation Alpenruhe, Saanen | CH